Koleksi Vertikal Stasiun Sampah
Koleksi vertikal stasiun sampah YJC400B set lengkap peralatan adalah perusahaan kami sesuai dengan situasi spesifik peralatan sanitasi domestik, belajar dari teknologi canggih dan proses pengolahan sampah di rumah dan di luar negeri dan mengembangkan produk paten.
perkenalan produk
Koleksi vertikal stasiun sampah YJC400B set lengkap peralatan adalah perusahaan kami sesuai dengan situasi spesifik peralatan sanitasi domestik, belajar dari teknologi canggih dan proses pengolahan sampah di rumah dan di luar negeri dan mengembangkan produk paten. Hal ini terutama digunakan untuk pengumpulan, kompresi dan pengurangan volume sampah rumah tangga dan limbah padat di pemukiman perkotaan, pabrik, tambang dan institusi dan perguruan tinggi. Pengumpulan vertikal stasiun sampah memiliki sejumlah teknologi yang dipatenkan dalam kompresor limbah, tempat sampah, dan kendaraan pengangkut.
Truk sampah seri 5182ZDJ adalah jenis baru pengangkut sampah yang sepenuhnya tertutup rapat yang dikembangkan oleh perusahaan kami. Ini digunakan bersama dengan kompresor sampah vertikal YJC400B dan digabungkan menjadi set lengkap peralatan stasiun transfer sampah terkompresi sedang atau besar. Kendaraan ini berpenampilan indah, nyaman dikendarai, mudah dioperasikan, fleksibel dan andal, dan banyak digunakan untuk pemindahan limbah padat perkotaan yang kedap udara.
Fitur dan keunggulan produk
1. Kepadatan sampah yang tinggi: peralatan memiliki gaya kompresi yang besar. Setelah sampah dikompresi, kepadatannya bisa mencapai 0.9 ton /m³, dan sudah mengalami dehidrasi dan bersih;
2. Peralatan menempati area kecil: tidak ada peralatan lain kecuali kompresor, stasiun pompa dan tangki air debu semprot, yang lebih nyaman dalam pembuangan limbah dan penghilang bau, dan lingkungan kerja sangat meningkat;
3. Menggunakan teknologi kompresi relai canggih untuk mengurangi ketinggian peralatan: penggunaan pemasangan paralel tiga silinder relai (teknologi yang dipatenkan), sangat mengurangi ketinggian peralatan, sehingga mengurangi ketinggian persyaratan bangunan, mengurangi biaya konstruksi sipil.
4. Sambungan engsel bola diadopsi antara kepala dan silinder kompresi: kepala dan silinder dapat dibelokkan secara sewenang-wenang dalam kisaran tertentu, ketika sampah tidak kompresi datar, silinder kompresi tidak memuat beban, secara efektif melindungi silinder kompresi ;
5. Mengadopsi struktur kotak integral: tempat kompresi, tempat penyimpanan, mekanisme dorong dan sekop terintegrasi (teknologi yang dipatenkan), meningkatkan efisiensi operasi dan keandalan peralatan, mewujudkan operasi tertutup dari proses kompresi sampah, kondusif untuk perlindungan lingkungan dan mencapai keseluruhan persyaratan kerja otomatisasi mesin;
6. Panduan antara kepala tekanan, tempat sampah dan kolom mengadopsi mode slider mengambang (teknologi paten): area gaya permukaan kontak besar, kolom tidak cacat, mudah disesuaikan, perawatan yang baik;
7. Otomatis, manual dua jenis kontrol: ketika kegagalan sistem kelistrikan atau pemeliharaan debugging, operasi manual sistem hidrolik untuk terus bekerja, sehingga mesin memiliki ketahanan kesalahan yang tinggi, untuk pemeliharaan peralatan dan debugging memberikan kenyamanan besar;
8. Mengadopsi berbagai tindakan perlindungan lingkungan untuk mengurangi pencemaran lingkungan: stasiun sampah menggunakan sistem penghilang bau cuci semprot, sistem penghilang bau udara, sistem pengumpulan dan pembuangan limbah, penutupan otomatis kepala tekanan, kontrol kebisingan, sistem pembilasan lubang dan peralatan lainnya serta langkah-langkah untuk melindungi lingkungan, untuk terciptanya tempat pembuangan sampah yang bersih dan beradab untuk menciptakan kondisi;
9. Mengadopsi komponen listrik dan hidrolik dari merek terkenal internasional untuk memastikan keandalan sistem.
Konfigurasi peralatan lengkap stasiun sampah
| Peralatan stasiun sampah |
Jumlah | Note | |
Kompresor sampah vertikal | Sistem kompresi | 1 | Kuat tekan 100 t |
Perakitan tempat sampah | 1 | ||
Sistem pengumpulan dan pembuangan limbah | 1 | ||
Sistem pencucian debu semprot | 1 | ||
Perangkat anti-jatuh untuk badan kotak | 1 | Penguncian dan pembukaan hidrolik | |
Sistem hidrolik | 1 | 22KW, 21MPa | |
Sistem kontrol dan manipulasi listrik | 1 | ||
Sistem pembilasan lubang | 1 | pilihan | |
Sistem penghilang bau udara | 1 | pilihan | |
5182ZDJ seri truk sampah | Menurut jumlah sampah dan jarak transportasi | ||

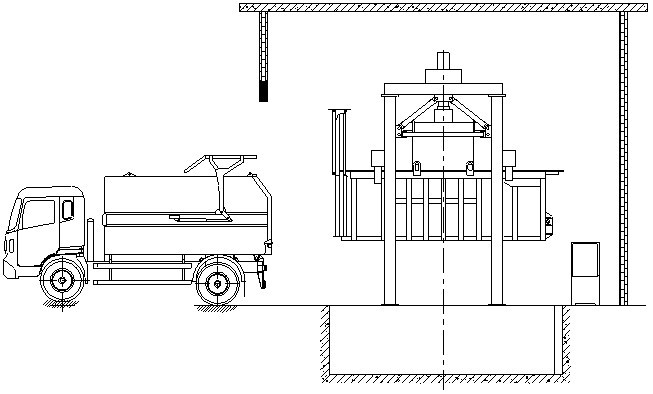
Diagram skema set peralatan lengkap stasiun kompresi sampah vertikal YJC400B
Indeks utama dan parameter kinerja set lengkap koleksi vertikal stasiun Sampah
Indikator utama dari set lengkap peralatan stasiun sampah | |
Kapasitas pembuangan sampah harian (7 jam operasi) | 80 ton/hari |
Formulir pemrosesan | Jenis pramuat |
Cara kompresi | Kompresi vertikal |
cara transportasi | Transportasi kedap udara |
Kategori sampah yang berlaku | Sampah rumah tangga, sampah padat |
Mode pengumpulan sampah yang berlaku | Koleksi becak, koleksi kendaraan bermotor kecil |
Lingkup aplikasi | Komunitas perkotaan, area perumahan, institusi, perguruan tinggi, dll |
Kompresor sampah vertikal | |
Dimensi kompresor (panjang × lebar × tinggi): | 5725×3250×6200 |
Kapasitas pembuangan sampah t/d | 80 |
Nilai gaya kompresi t | 100 |
Volume gudang terkompresi m³ | 5.0 |
Ukuran blok sampah (l × L × T) mm | 1600×1850×1400 |
Berat blok sampah t | 2x4=8 (satu kotak berisi 2 buah, total 8T) |
Sistem hidrolik dinilai tekanan kerja MPa | 21 |
daya kW | 22 |
Catu daya v | 380 (AC tiga fase) |
beratnya | 20 |
Sistem pembuangan limbah | |
Kekuatan: kw | 1.1 |
Kepala: m | 7 |
Kapasitas pembuangan limbah: m³/h | 18 |
Sistem pencucian debu semprot | |
Kekuatan: | 1,3 kW |
Tekanan: | 7MPa |
Lalu lintas: | 7,5L / mnt |
Sistem pembersihan lubang (opsional) | |
daya kw | 4 |
Angkat m | 30 |
Lalu lintas m³/j | 25 |
Pengantar aliran proses
Pembuangan dan pemampatan sampah (Gambar 1)Sampah rumah tangga warga perkotaan dikumpulkan dengan troli dan diangkut ke stasiun dan dibuang ke tempat sampah yang ditempatkan di lubang. Setelah sampah lepas diisi ke tempat sampah, kompresor vertikal dioperasikan untuk pemadatan, dan kemudian head tekanan dinaikkan untuk terus membuang dan mengompres sampah. Umumnya, sepotong sampah dapat dikompresi setelah tiga siklus kompresi.

2.Blok sampah bergeser dan memampatkan balok sampah kedua
Ketika sepotong tekanan sampah, sistem kontrol, pertama-tama promosikan rakitan tempat sampah di pintu, dan kemudian oleh rakitan tempat sampah di sekop akan didorong ke tempat penyimpanan tempat sampah, dan kemudian pintu dan dorong reset sekop. Ulangi pembuangan sampah, siklus kompresi, tekanan yang baik dari potongan sampah kedua.
3. Tempat sampah terhubung dengan kereta dan diturunkan
Angkat tempat sampah ke ketinggian yang sesuai dengan gerbong mobil transfer, dan balikkan mobil transfer ke stasiun. Setelah memasang kereta dengan tempat sampah, dorong kedua potongan sampah di dalam kotak sampah ke dalam kereta yang kosong melalui mekanisme sekop dorong. Truk transfer bergerak maju dan melepaskan diri dari tempat sampah. Rakitan bin dikembalikan ke pit untuk operasi berikutnya.
4. Angkutan sampah
Operasikan mekanisme penutupan pintu belakang gerbong, tutup pintu belakang kendaraan pengangkut sampah yang tertutup rapat, kemudian kendaraan pengangkut sampah akan meninggalkan tempat sampah dan membawa sampah ke tempat pembuangan akhir.
Tag populer: koleksi vertikal stasiun sampah, Cina, pemasok, produsen, disesuaikan, murah, diskon, tersedia
Anda Mungkin Juga Menyukai
Kirim permintaan







